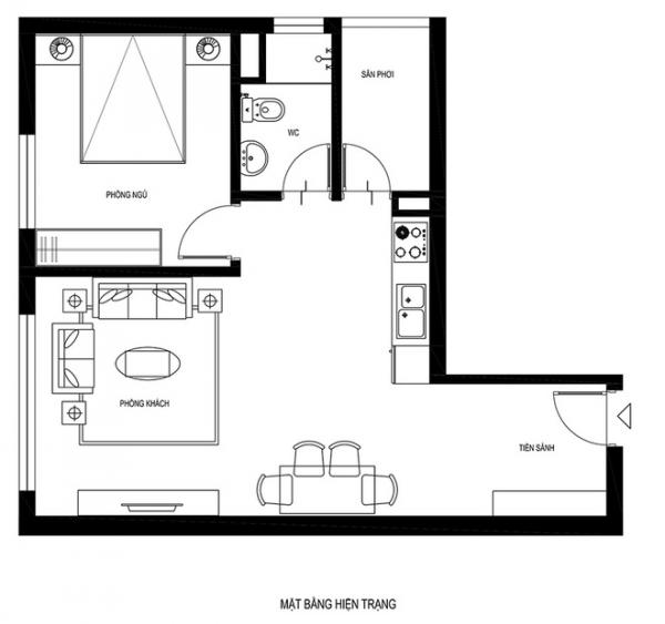
Chủ nhà ở quận Hoàng Mai (Hà Nội) là cặp vợ chồng ở độ tuổi 30, có một con nhỏ 4 tuổi. Họ mua căn hộ 53 m2 vuông vắn với một mặt cửa sổ chính, thêm mặt thoáng phụ ở WC và sân phơi mở ra giếng trời của tòa nhà. Tuy nhiên, nhà lại chỉ có một phòng ngủ nên không phù hợp với nhu cầu của gia đình.
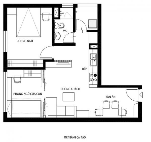
Nhà có thêm một phòng ngủ, bếp rộng hơn và phòng nào cũng có ánh sáng.

Bởi vậy, yêu cầu đầu tiên của chủ nhà là căn hộ phải có 2 phòng ngủ. Ngoài ra, chủ nhà mong muốn có không gian nhiều ánh sáng, nội thất trẻ trung trong phạm vi kinh phí vừa phải.
KTS Bạch Trọng Đức (Công ty Phong Đức) đưa ra giải pháp chia phòng khách hiện trạng thành phòng ngủ cho em bé và phòng khách mới. Ngăn cách giữa hai khu vực này là cửa kính giúp ánh sáng tự nhiên vẫn chiếu được tới không gian sinh hoạt chung.
Để giải quyết yêu cầu về phong cách trẻ trung và chi phí, KTS sử dụng vật liệu nội thất là gỗ sơn trắng kết hợp với gỗ công nghiệp. Cách sử dụng vật liệu này có thể giảm 30% kinh phí so với gỗ tự nhiên.
Tủ bếp được cải tạo để kích thước dài hơn giúp chủ nhà thoải mái khi nấu ăn.
Em bé 4 tuổi thích màu xanh và ôtô nên bố mẹ trang trí sẵn một căn phòng xinh xắn và nhiều ánh sáng cho con.
Hai vợ chồng chủ nhà là dân văn phòng, tính cách cởi mở, trẻ trung. Bởi vậy, phòng nào trong nhà cũng có những món đồ trang trí đáng yêu.
Chồng thích sự ngăn nắp, gọn gàng còn vợ lãng mạn, thích màu tím. Nội thất phòng ngủ riêng của hai vợ chồng cũng được thiết kế dựa trên các đặc điểm này.
Tổng chi phí cải tạo nhà và mua nội thất (trừ đồ điện tử) là 200 triệu đồng.


Không có nhận xét nào:
Đăng nhận xét